All our work is informed by understanding the impact which individual pieces of architecture have on the fabric of the urban environment as a whole.

Specialisation

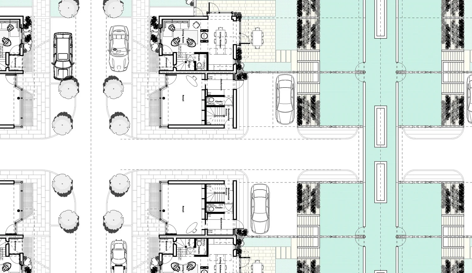
As society develops so does the complexity of the issues facing our urban enclaves. Consideration of scale, form, and proportion alone has become insufficient to achieve design solutions within this context. 
 
re|form has a grounding in urban strategy and design borne out of projects for Borsbeek (Antwerp) and Amsterdam. Working at this urban scale requires a specialist skill set, a understanding of complexity, network theory, and social interactions.
 
As a practice we can offer these specialised skills, integrated into holistic design packages from master planning studies through to detailed design.